LDK株式会社 > 新築戸建/ふじみ野市新駒林2丁目(全1棟)
「新築戸建/ふじみ野市新駒林2丁目(全1棟)」:ふじみ野市エリアの新居にピッタリ。ファミリーマート/富士見勝瀬店まで徒歩7分と近場にコンビニがあるのもポイント。3SLDKの間取りです。LDKではふじみ野市にある不動産情報をお探しいただけます。引っ越しを検討されているのであれば、お気軽にご連絡ください。











(※元利均等方式 金利5.00%まで ※返済年数5~50年まで入力できます)
(※ボーナスは年2回で計算しています。1000万円まで入力できます)
(※物件購入時、その他諸費用が発生する場合がございます)
| 所在地 | 埼玉県ふじみ野市新駒林2丁目 | ||
|---|---|---|---|
| 交通 | |||
| 間取り/詳細 |
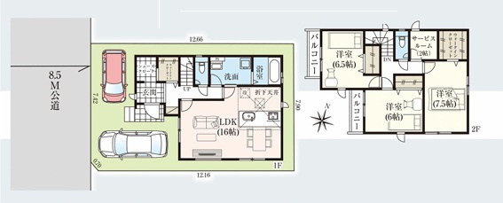
3LDK+1S(納戸)/ LDK 16.0帖 1室/洋室 6.5帖 1室/洋室 6.0帖 1室/洋室 7.5帖/S 2.0帖 1室 2面バルコニー ウォークインクローゼット サービスルーム ウォークインクローゼット ファミリークローゼット 駐車場2台 全居室6帖以上 |
建物面積(坪数) | 99.78㎡(30.18坪) |
| 価格 | 5,480万円 | ||
| 駐車場/月額料金 | 有(2台)/0円 | ||
| 土地の敷金/保証金 | -/- | 借地料/借地期間 | -/- |
| 土地権利 | 所有権 | 土地面積(坪数) | 100.00㎡(30.24坪) |
| 傾斜地部分面積 | - | 路地状敷地 | - |
| 私道負担面積/セットバック | -/無 | 高圧線下面積 | - |
| 地目/地勢 | 宅地/- | 接道状況 | 一方(南西 公道 8.5m) |
| 建ぺい率/容積率 | 60%/100% | 用途地域 | 第一種低層住居専用 |
| 都市計画 | 市街化区域 | 種別/構造 | 新築一戸建/木造 |
| 階建 | 2階建 | 築年月(築年数) | 2026年 1月 (新築) |
| 総区画数/販売区画数 | -/- | 向き | - |
| 現況 | 完成済み | その他の法令上の制限 | 景観法/宅地造成及び特定盛土等規制法/高さ最高限度有/日影制限有 |
| 取引態様/引渡時期 | 仲介/即時 | 建築確認番号 | - |
| 物件番号 | 102723058 | 取引条件の有効期限 | 2026年05月04日 |
| 設備条件 |
|
||
| 備考 | ふじみ野市/元町西公園まで218mです。暮らしに便利なヤオコー/上福岡駒林店(スーパー)がこちらから89mのところにあります。交通に便利な東武東上線ふじみ野近くで、より心地いい暮らしを送りましょう。0120-911-118からLDKまで、戸建て探しのご依頼をお申し付け下さい。 | ||
| 取扱会社 |
|
||
| QRコード |
このQRコードを読み取ることで、スマホでも物件情報を確認できます。 |
||
※地図上に表示される物件の位置は付近住所に所在することを表すものであり、実際の物件所在地とは異なる場合がございます。
新築戸建/ふじみ野市新駒林2丁目(全1棟)に関するこだわり条件から探す
ふじみ野市以外の市区町村から探す
ふじみ野市の町名から探す
ふじみ野市にある駅から探す